Wohnungen und Ladengeschäft in Treuenbrietzen. Bölke-Planung. Wohnungen in Jänickendorf bei Luckenwalde. Startseite. Wohnungen Burg 28   . Wohnungen Potsdamer Str. 55   . Büroräume.
Copyright © Alle Rechte vorbehalten.


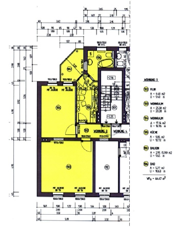
Die in den Grundrissen dargestellten Raumflächen sind Netto-Raumflächen, die der Mietfläche nach Wohnflächen-berechnung (Terrassen- und Balkonflächen zu je 50 % angesetzt) gem. II. Berechnungsverordnung entsprechen. Die dargestellte Möblierung der Küchen ist nur als mögliche Variante zu verstehen. Die Küchenausstattung ist von Seiten des Vermieters nicht geplant und nicht Bestandteil der kalkulierten Kaltmiete.